Používame cookies

Súbory cookie a ďalšie technológie sledovania používame na zlepšenie vášho zážitku z prehliadania našich webových stránok, na to, aby sme vám zobrazovali prispôsobený obsah a cielené reklamy, na analýzu návštevnosti našich webových stránok a na pochopenie toho, odkiaľ naši návštevníci prichádzajú. Viac info

 

Výnimočný stavebný pozemok s výhľadom na Čachtický hrad.

Obec: Višňové
Okres: Nové Mesto nad Váhom
Kraj: Trenčiansky kraj
Druh: Pozemky
Typ: Predaj
Typ pozemku: Pozemok pre rodinné domy
Iné:
69 800 €
Vrátane projektu RD s wellness

Popis nehnuteľnosti

Ponúkame na predaj vo výhradnom zastúpení stavebný pozemok v obci Višňové s priamym výhľadom na Čachtický hrad a projektom dvojdomu s wellness.

  • pozemok má 826 m2 a je predurčený nie len na výstavbu rodiného domu, ale poskytuje priestor aj pre výsadbu okrasnej a úžitkovej záhrady.
  • Jedinečnou výhodou tohto pozemku je jeho umiestnenie v okrajovej no zastavanej oblasti obce s vybudovanou infraštruktúrou a asfaltovou komunikáciou.
  • Na hranici pozemku sa nachádzajú inžinierske siete: elektrina 220V/400V a obecná voda.
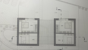
  • Majiteľ ponúka už vypracovaný projekt dvojdomu prepojeného s wellness na ktorý bolo vydané stavebné povolenie v roku 2022.

Obec Višňové leží na úpätí Malých Karpát pod Čachtickým hradom. Bezproblémové napojenie na Diaľnicu D1 je cez Nové Mesto nad Váhom, ktoré je vzdialené len 9 km. Cesta z Bratislavy je v trvaní niečo vyše hodiny (cca 100 km), Cesta po dialnici do Trenčína Vám potrvá cca 30 minút približne rovanko ako do Piešťan.

Pokiaľ Vás táto ponuka oslovila neváhajte ma kontaktovať aby sme si dohodli obhliadku.

Ing. Peter Haraslin 

Mobil, whats app: +421 903 432 103

Email: peter.haraslin@gmail.com

Vlastnosti

Status:
aktívne
Vlastníctvo:
osobné
Plocha pozemku:
826 m2
Typ zeme:
prevažne rovná
Teritórium:
Intravilán
Šírka pozemku:
36 m
Dĺžka pozemku:
23 m
Celková plocha:
826 m2
Orientácia:
juhovýchod
Inžinierske siete:
áno
Voda:
áno
Elektrika:
áno
Voda - na pozemku:
áno
Elektrika - na pozemku:
áno
Elektrika - na pozemku - 230 V:
áno
Elektrika - na pozemku - 380 V:
áno

Pozrieť na mape

Radi Vám poradíme

Podobné nehnuteľnosti